Casa semindipendente in vendita

Verolengo, Via Sant'Anna la Vetere - Borgo Revel
€ 58.000
4 locali 4 locali
102 Mq 102 Mq
2 bagni 2 bagni

Casa semindipendente in vendita

Verolengo, Via Sant'Anna la Vetere - Borgo Revel

Descrizione annuncio

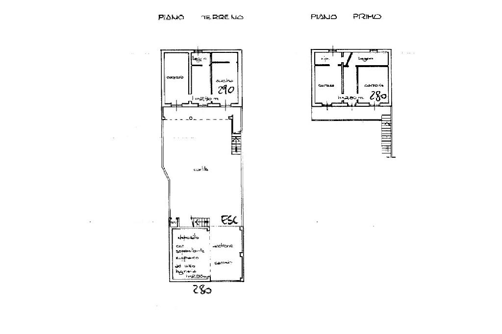
In zona tranquilla immersa nel verde, soluzione semindipendente con giardino privato disposta su due livelli.

Il piano terra è composta da ingresso in disimpegno, cucina abitabile con dispensa, sala e bagno di servizio.

Tramite scala esterna si raggiunge il primo piano caratterizzato da disimpegno, una camera da letto matrimoniale, una camera singola, un bagno ampio con vasca e un ripostiglio.

A completamento della proprietà una tettoia aperta ad uso deposito.

Lo Studio Verolengo SaS affiliato Tecnocasa offre gratuitamente e senza impegno una valutazione del vostro immobile. Il cliente viene seguito a 360° nelle fasi della vendita o della locazione e nella gestione dei mutui con la collaborazione dei professionisti della Kiron.

PER APERTURA DI NUOVE SEDI e AMPLIAMENTO ORGANICO siamo alla ricerca di personale. Potrete inviarci il vostro curriculum con foto al nostro indirizzo mail:

Per ulteriori informazioni ci trovate in Via Roma 1, Verolengo. Telefono:011.064.26.14 - Whatsapp:327.66.25.937

Mostra tutto

Nelle vicinanze

Trasporto pubblico Trasporto pubblico
Borgo Revel
Borgo Revel
560 m
Borgo Revel
Borgo Revel
940 m
Borgo Revel (Benne)
Borgo Revel (Benne)
1,8 Km
Ristoranti Ristoranti
Agriturismo Cascina Bianca
800 m
Locanda Pizzeria 10038
910 m
Mostra tutto

Caratteristiche

Rif.:
61131213
Piano:
2 di 2 (Piano su più livelli)
Posti auto:
1
Balconi:
1
Camere da letto:
2
Arredamento:
Assente
Mostra tutto
Prezzo Prezzo
€ 58.000
Rata mutuo Rata mutuo
€ 266 / mese
Spese annue Spese annue
€ 0
Proponi il tuo prezzoProponi il tuo prezzo

Classe Energetica

G
G
G
G
G
G
G
G
G
EP globale non rinnovabile:
222.52 kW h/m² anno
EP globale rinnovabile:
0.00 kW h/m² anno
EP invernale del fabbricato:
EP estiva del fabbricato:
Anno di costruzione:
1900
Riscaldamento:
Autonomo
Tipo impianto:
A stufa
Tipo alimentazione:
Altro

Ti interessa visionare l'immobile?

Fissa un appuntamento  Fissa un appuntamento

Richiedi informazioni

* Questi campi sono obbligatori

Calcola il tuo mutuo

Semplice e senza impegno
Anticipo

( % )
Mutuo

( % )

pochi semplici passi

inserisci i tuoi dati
Questionario completato
Grazie per aver richiesto un appuntamento senza impegno con un nostro Consulente del Credito e Assicurativo.

Hai inserito correttamente tutti i dati necessari e a breve riceverai una e-mail con un link da convalidare per inviare i tuoi dati.
Affiliato
Studio Verolengo Sas
Via Roma, 1 10038 Verolengo (TO)

Il nostro staff


  • Diego Buscieti
    Affiliato
Via Roma, 1 10038 Verolengo (TO)
Zona: Verolengo-Lauriano-Cavagnolo-Monteu Da Po
Mostra su mappa
Orari: Lun. - Ven. 09.00/12.30 - 14.30/20.00 Sab. 09.00/12.30 - 14.30/19.00 DOMENICA CHIUSO
Affiliato
Studio Verolengo Sas
Via Roma, 1 10038 Verolengo (TO)

2025 Tecnocasa Franchising S.p.A. - P. IVA 08365160152 - Via Monte Bianco 60/A 20089 Rozzano (MI). Ogni agenzia ha un proprio titolare ed è autonoma. Privacy policy | Policy utilizzo | Cookie policy